logo-raywhite-offcanvas

Rumah for Sale

READY! Rumah Baru Hook Bintaro 2,5 Lantai - 3+1 KT, One Gate, FREE Semua Biaya

Tangerang Selatan, Banten


OFFERS OVER

Rp 4,5M

Anggie Pribudi
Anggie Pribudi
Call Anggie
Gambar LM

Rumah for Sale

READY! Rumah Baru Hook Bintaro 2,5 Lantai - 3+1 KT, One Gate, FREE Semua Biaya

Tangerang Selatan, Banten


OFFERS OVER

Rp 4,5M

Rumah for Sale in Tangerang Selatan, Banten

SPESIFIKASI
Rumah Baru di Hook
LT 125 m2 | LB 134 m2 | Lebar 9m x 12m
3 +1 Kamar Tidur | 3+1 Kamar Mandi
2,5 Lantai
Carport 2 mobil
Taman samping
Desain modern minimalis
Lingkungan asri dan tertata
One gate system + 24 jam keamanan
Akses mudah ke jalan besar, tol & transport publik
Sertifikat PPJB

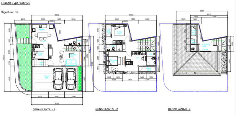
DENAH RUMAH (terlampir dalam foto properti)
Lantai 1
1 kamar tamu
1 kamar mandi
1 ruang keluarga
1 ruang makan dan dapur
Taman samping
Carport

Lantai 2
1 master bedroom luas + private bathroom + area walking closet + balcony
1 kids room+ private bathroom + balcony

Lantai 3
1 kamar art + 1 kamar mandi art
service area

LOKASI STRATEGIS
Lokasi sekitar Bintaro Sektor 3A, Pondok Ranji, Ciputat Timur, South Tangerang City, Banten 15412
3 Menit Ke St. PD. Ranji Baru
3 Menit Ke Bintaro Plaza
3 Menit Ke Sekolah Pembangunan Jaya
3 Menit ke RS. Mitra Keluarga Bintaro

FASILITAS CLUSTER
1 Gated sistem
Row jalan lebar
Listrik "underground"
Musholla
Swimming Pool
Basket Court
Jogging Track
Kids Playground

AVAILABLE hanya 3 UNIT, READY Brand New House

PROMO DEVELOPER
FREE BIAYA KPR
FREE BPHTB
FREE AJB
FREE NOTARIS DAN PENINGKATAN SHM
CANOPY
TOREN
SMARTDOOR LOCK

Booking 20 Juta

Hubungi kami untuk informasi unit tersedia, detail promo dan berbagai mekanisme payment.

Anggie Pribudi (Agee)
Gudang Properti | Your Property Soulmate
Jual Beli Sewa Rumah Ruko| Primary Secondary


Specification

Live ID : L39277147
Listing ID : 517430
Building Size : 134 m2
Land Size : 125 m2
Certificate : PPJB
Bedroom : 3
Bathroom : 3
Carport : 0

Simulasi KPR

Harga Properti

IDR 4.500.000.000

Persentase DP

Detail Pinjaman

Ray White Indonesia bekerja sama dengan Loan Market, Loan Aggregator resmi tercatat di OJK untuk menyajikan data ini. Ada lebih dari 29 Bank dan Institusi Keuangan yang bekerja sama sehingga Anda akan mudah mendapat KPR atau KPA.

Bank Jumlah Pinjaman Cicilan per Bulan Periode Bunga Fix

Property Article’s